VALLERONA - CENTRO
APPARTAMENTO COMPOSTO DA PICCOLA TERRAZZA, SOGGIORNO CON ANGOLO COTTURA, N°2 CAMERE NON GRANDISSIME, PICCOLO BAGNO. CANTINA AL PIANO TERRA. L'APPARTAMENTO VA UN PO' RIVISTO E MEGLIO DIVISO. NEL PREZZO E' COMPRESO ANCHE UN ULIVETO DI...
43m23
15.000€
ROCCASTRADA - CENTRO STORICO
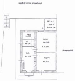
VENDESI A ROCCASTRADA NEL CENTRO STORICO, CARATTERISTICO APPARTAMENTO SU DUE LIVELLI DI SUPERFICIE COMPLESSIVA 90 MQ COMPOSTA DA QUATTRO STANZE E UN BAGNO. INGRESSO INDIPENDENTE, FACCIATA IN PIETRA E TETTO RIFATTO. L' ABITAZIONE E' COMPLETAMENTE DA RISTRUTTURARE. TRAMITE UNA BOTOLA NELLA CUCINA, SI...
90m241
25.000€
CINIGIANO - SASSO D'OMBRONE
SASSO D'OMBRONE PICCOLO E CARATTERISTICO APPARTAMENTO CON TRAVI E CORRENTI COMPLETAMENTE DA RISTRUTTURARE DI CIRCA 50 MQ CON INGRESSO INDIPENDENTE NEL CENTRO STORICO DEL PAESE PIANO 1 ° COMPOSTO DA SOGGIORNO CON ANGOLO COTTURA E CAMINETTO CAMERA MATRIMONIALE E BAGNO RIPOSTIGLIO/CANTINA NEL SOTTOSCALA AFFARONE RIF CVE119 CLASSE G IPE 260,00 RICHIESTA...
50m221
27.000€
VALLERONA - CENTRO
FABBRICATO COMPLETAMENTE DA RISTRUTTURARE COMPOSTO DA DUE STANZE AL PIANO TERRA E DUE STANZE AL PIANO PRIMO. CANTINA AL PIANO SEMINTERRAT. BUONA POSIZIONE
70m241
30.000€
SCANSANO - CENTRO
Posto nel cuore del borgo storico di Scansano, noto per il famoso vino Morellino, offriamo questo appartamento di 70 metri quadri circa con ingresso bifamiliare, posto al piano primo e secondo di una palazzina non servita da ascensore. Un piccolo disimpegno permette l'accesso alle due unità immobiliari, una al...
70m241
32.000€
CINIGIANO - CENTRO
CINIGIANO Nel centro storico del paese vicino alla piazza dell'orologio si vende appartamento con ingresso indipendente da un piccolo terrazzino rialzato dal quale si accede al soggiorno ampio e luminoso con camino e piccolo cucinotto ricavato in una nicchia, disimpegno con due camere, un bagno e un ripostiglio. L'appartamento...
82m241
35.000€
CINIGIANO - CENTRO
CINIGIANO Nel centro storico del paese nei pressi di una delle piazze tipiche del paese si vende appartamento in un fabbricato in pietra con accesso da una scalinata esterna pubblica e panoramica. All'ingresso un comodo ripostiglio per la legna o quant'altro. Dal portone si accede al soggiorno ampio e luminoso...
72m23,51
35.000€
CINIGIANO - CENTRO
CINIGIANO Appartamento nel centro storico del paese con ingresso indipendente posto al primo piano con sala e cucinotto, due camere e bagno con vasca e finestra. Buono stato. Libero a breve.
98m24,5
35.000€
SCANSANO - POGGIOFERRO
Poggioferro Vendesi Appartamento di 60 mq Posto al Piano Primo e Ultimo di un Piccolo Fabbricato di Tre Appartamenti. L' immobile, Benchè Abitabile è comunque da rivedere, ed è Composto da Tre Locali quali la Cucina, Due Camere Matrimoniali e il Bagno...
60m231
40.000€
ROCCASTRADA - SASSOFORTINO
A SASSOFORTINO IN VILLETTA A SCHIERA APPARTAMENTO CON INGRESSO INDIPENDENTE DA CORTE ESCLUSIVA COMPOSTO DA SOGGIORNO CON CUCINOTTO, DUE CAMERE, BAGNO C.F. CORREDATO DA DUE LOCALI USO TAVERNA CON CAMINO CLASSE ENERGETICA "G" IPE 257,35 KWH/MQ ANNO
60m241
40.000€
VALLERONA - CENTRO
VALLERONA APPARTAMENTO CON INGRESSO INDIPENDENTE COMPOSTO AL PIANO TERRA DA SOGGIORNO CON ANGOLO COTTURA E CAMINETTO, AL PIANO PRIMO TRAMITE SCALA INTERNA CONDOMINIALE, DUE CAMERE GRANDI ,BAGNO CON FINESTRA
58m231
40.000€
ROCCASTRADA - STICCIANO SCALO
STICCIANO SCALO APPARTAMENTO INDIPENDENTE COMPLETAMENTE DA RISTRUTTURARE, COMPOSTO DA AMPIA CUCINA, SOGGIORNO, DISIMPEGNO NOTTE, CAMERA MATRIMONIALE, RIPOSTIGLIO CON FINESTRA , BAGNO CON FINESTRA. CORTE ESCLUSIVA SU TRE LATI, CANTINA AL PIANO TERRA ADIACENTE ALL'APPARTAMENTO, CORTE URBANA CON...
66m23,51
40.000€
ROCCALBEGNA - CANA
CANA APPARTAMENTO IN BUONE CONDIZIONI POSTO AL PIANO PRIMO ED ULTIMO, COMPOSTO DA SOGGIORNO CON PARETE COTTURA, BAGNO, CAMERA MATRIMONIALE, CAMERA SINGOLA. AL PIANO TERRA LOCALE TECNICO CON CALDAIA A GASOLIO, FRONTE ALL'APPARTAMENTO AMPIA CANTINA CARATTERISTICA CON TRAVI AVISTA.
60m231
45.000€
VALLERONA - CENTRO
VALLERONA APPARTAMENTO COMPLETAMENTE DA RISTRUTTURARE CON INGRESSO INDIPENDENTE COMPOSTO AL PIANO TERRA DA N 2 STANZE E BAGNO ED AL PIANO PRIMO DA ALTRE 2 STANZE CANTINA AL PIANO TERRA BUONA...
80m241
45.000€
ROCCASTRADA - ROCCATEDERIGHI
CENTRO STORICO ROCCATEDERIGHI VICOLO DELLA TORRE - VENDESI APPARTAMENTO CON INGRESSO INDIPENDENTE COMPOSTO DI SOGGIORNO CON ANGOLO COTTURA, CAMERA MATRIMONIALE E BAGNO C.F. SOFFITTI CON TRAVI IN LEGNO, CORRENTI E MEZZANE.
45m22,5
45.000€
MONTICELLO AMIATA - CENTRO
Nel Comune di Cinigiano, a Monticello amiata, in pieno centro storico vi offriamo un appartamento terra-tetto composto da un ampia cantina al piano terra, oltre un soggiorno con angolo cottura e un bagno. Tramite una scala interna accediamo al piano primo dove troviamo una camera matrimoniale e uno...
70m23,51
50.000€
ARCIDOSSO - CENTRO
Arcidosso Zona Centrale Appartamento bilocale proveniente da frazionamento posto al 4 ed ultimo piano senza ascensore e composto da ingresso. cucinotto con finestra, soggiorno con balcone, camera matriomoniale e bagno con finestra. Posto auto nella corte. Libero classe energetica "G" IPE 400,67 kwh/mq anno
50m22,5
50.000€
VALLERONA - CENTRO
VALLERONA APPARTAMENTO INDIPENDENTE COMPOSTO DA SOGGIORNO CON CAMINETTO, CUCINA ABITABILE, STUDIO, AL PIANO PRIMO CON SCALA INTERNA CAMERA MATRIMONIALE, CAMERETTA, BAGNO, STANZA DI PASSAGGIO UTILIZZABILI COME SECONDA CAMERINA. AL PIANO SEMINTERRATO CARATTERISTICA CANTINA CON SOFFITTO A BOTTE.L'IMMOBILE...
110m261
50.000€
CASTEL DEL PIANO - CENTRO
CASTEL DEL PIANO APPARTAMENTO ZONA STADIO COMPOSTO DA SOGGIORNO CON ANGOLO COTTURA E TERRAZZINO, DUE CAMERE DI CUI UNA CON TERRAZZINO, BAGNO. POSTO AUTO DI PROPRIETA'. ATTUALMENTE AFFITTATO CON CANONE MESILE DI...
45m231
50.000€
SCANSANO - MURCI
MURCI (PARTE ALTA) CASA DA RISTRUTTURARE DI 6 VANI CIRCA MQ. 140 SUDDIVISA SU 2 LIVELLI (3 VANI AL PIANO TERRA E 3 VANI AL PIANO 1°) SONO STATI REALIZZATI ALCUNI LAVORI (SABBIATURA DELLE TRAVI ESISTENTI, LIEVO DEGLI INTONACI E PIETRA FACCIA VISTA). IL TETTO...
140m261
55.000€
CINIGIANO - CENTRO
CINIGIANO Nel centro storico del paese in posizione panoramica proponiamo la vendita di appartamento di 90 mq in palazzina degli anni 60 di soli due livelli posto al primo ed ultimo piano e composto da ingresso, ampio soggiorno, cucina abitabile, due camere da letto, un bagno e un ripostiglio...
93m241
55.000€
SCANSANO - POLVERAIA
Nel borgo di Polveraia, nel comune di Scansano, vendiamo appartamento di circa 135 mq disposto su 3 livelli con ingresso indipendente dal piano strada. Da scala in pietra serena si accede al primo piano dove si trova la zona giorno con sala, cucinotto separato, bagno finestrato e balcone...
135m241
57.000€
CINIGIANO - CASTIGLIONCELLO BANDINI
CASTIGLIONCELLO BANDINI IN PICCOLA PALAZZINA CON INGRESSO INDIPENDENTE VENDITA DI DUE PICCOLI BILOCALI DA RISTRUTTURARE. REALIZZABILE UN 4 VANI CON INGRESSO INDIPENDENTE STUDIO PER BED AND BREAKFAST DI 4 CAMERE CON BAGNO VENDITA A CORPO
60m242
58.000€
SCANSANO - POGGIOFERRO
P oggioferro, Vendesi Appartamento di 40 mq circa Completamente Ristrutturato nel 2021 con Adiacente Piccolo Terreno con Annesso in Pietra, Situato nella Piccola Frazione di Poggioferro nell'Entroterra della Maremma Grossetana. Il Paese Conta circa 190 Abitanti ed è Adagiato...
40m221
60.000€
ROCCALBEGNA - S.CATERINA
S.CATERINA APPARTAMENTO CON ENTRATA INDIPENDENTE COMPOSTO DA CUCINA ABITABILE, DUE CAMERE, BAGNO,SOFFITTI CON TRAVI IN LEGNO. AL PIANO SEMINTERRATO SOTTOSTANTE L'APPARTAMENTO TRE AMPIE CANTINE COMINICANTI TRA LORO.POSIZIONE PANORAMICA CON VISTA SULLA MAREMMA. FRONTE L'APPARTAMENTO TERRENO DI MQ. 2.600 CON VISTA PANORAMICA. ...
65m231
60.000€
ROCCALBEGNA - CANA
A Cana Nella piazza del paese vendesi caratteristico appartamento completamente e finemente ristrutturato con travi in legno, mezzane in cotto, pareti in pietra faccia vista posto al piano con ingresso indipendente composto da ingresso/cucina , tinello o seconda camera con affaccio sulla valle, salotto, camera da...
55m24
60.000€
SCANSANO - CENTRO
SCANSANO APPARTAMENTO AL PIANO RIALZATO DI 70 MQ CIRCA COMPOSTO DA INGRESSO, SOGGIORNO CON ANGOLO COTTURA E TERRAZZO, DUE CAMERE MATRIMONIALI E UN BAGNO. L'APPARTAMENTO E' IN CONDIZIONI ABITABILI. CORREDATO DI CANTINA. CORTE CONDOMINIALE PER USO POSTI AUTO.
70m241
65.000€
CINIGIANO - SASSO D'OMBRONE
NEL CENTRO DEL PAESE APPARTAMENTO IN PICCOLO CONDOMINIO, ABITATO SALTUARIAMENTE, COMPOSTO AL PIANO SECONDO DA AMPIO SOGGIORNO, CUCINOTTO , PICCOLO SOTTOSCALA, TRAMITE SCALA INTERNA DUE CAMERE MATRIMONIALI, BAGNO CON LUCERNAIO . E' STATA APPENA RIFATTA LA FACCIATA E REVISIONATO IL TETTO. ...
72m241
70.000€
CINIGIANO - SASSO D'OMBRONE
Appartamento in Sasso d'Ombrone disposto su due piani, in buone condizioni generali, impianti e infissi nuovi. Mai abitato dopo la ristrutturazione. Libero, Pronta consegna.
80m242
70.000€
CINIGIANO - SASSO D'OMBRONE
VENDESI IN PROVINCIA DI GROSSETO, NEL COMUNE DI CINIGIANO, LOCALITA' SASSO D'OMBRONE APPARTAMENTO IN PICCOLA PALAZZINA IN BIFAMILIARE PIANO TERRA CON INGRESSO INDIPENDENTE E TERRAZZA PANORAMICA SULLA VALLE DELL'OMBRONE. L'IMMOBILE DI 65 MQ E' COMPOSTO DA: SOGGIORNO/CUCINA, 2 CAMERE, DISIMPEGNO E BAGNO. TERMO A GPL E STUFA A PELLET, CORREDATO...
65m241
71.000€
SCANSANO - CENTRO
SCANSANO GRAZIOSO APPARTAMENTO NEL CENTRO DI SCANSANO, POSTO AL PRIMO PIANO DI CIRCA 70 MQ, RISTRUTTURATO E COMPOSTO DA UN SOGGIORNO CON CAMINO, UNA CUCINA ABITABILE, UNA CAMERA MATRIMONIALE, UNA CAMERA DOPPIA e BAGNO. ARREDATA
70m241
72.000€
VALLERONA - CENTRO
VALLERONA ALL'ENTRATA DEL PAESE IN POSIZIONE PANORAMICA APPARTAMENTO COMPLETAMENTE RISTRUTTURATO CON INGRESSO INDIPENDENTE DALLA VIA COMUNALE.TRAMITE SCALA INTERNA AL PIANO PRIMO SOGGIORNO, CUCINA ABITABILE CON USCITA NELLA CORTE RETRO ESCLUSIVA, AMPIA CAMERA MATRIMONIALE, CAMERA DOPPIA , BAGNO CON FINESTRA, RIPOSTIGLIO. NELLA CORTE PICCOLO ANNESSO AD USO MAGAZZINO LIBERO PRONTA...
70m241
75.000€
VALLERONA - CENTRO
APPARTAMENTO CON OTTIMA VISTA SULLA VALLATA, COMPOSTO AL PIANO TERRA DA SOGGIORNO, CUCINA, AMPIO RIPOSTIGLIO CON FINESTRA UTILIZZABILE ANCHE COME ALTRA CAMERETTA. AL PIANO PRIMO CAMERA, CAMERETTA E BAGNO. POSSIBILITA' DI ACQUISTARE NELLE VICINANZE DELL'APPARTAMENTO TERRENO CON ULIVETO E PICCOLO...
80m24,51
78.000€
SCANSANO - CENTRO
SCANSANO, CAPOLUOGO DEL COMUNE OMONIMO E PAESE DEL MORELLINO, SORGE IN UNA ZONA COLLINARE A 29 KM DAL MARE, A 25 DALLE TERME DI SATURNIA, 50 DAL MONTE AMIATA ED A 29 DA GROSSETO. VENDESI NEL BORGO...
61m231
80.000€
ROCCALBEGNA - CENTRO
VENDESI/affittasi luminoso appartamento al 2° ed ultimo piano di piccola palazzina scala "A" con accesso di n.2 condomini + 2 aventi solo diritto di passo,ingresso mq. 6, ampio soggiorno di mq. 26 con angolo cottura ed accesso al terrazzo abitabile di circa mq. 5, disimpegno notte di mq. 6 circa, camera matrimoniale...
84m251
80.000€
SCANSANO - POGGIOFERRO
A Poggioferro Appartamento terra/tetto in bifamiliare composto da al piano terra ingresso, soggiorno, cucina, camera e bagno e due camere con bagno al piano primo corredato da soffitta, cantina, due locali esterni uso magazzino e ampia corte circostante di circa 2300 mq Libero Classe energetica "G" IPE 1109,4 kwh/mq anno...
170m251
80.000€
CAMPAGNATICO - CENTRO
CAMPAGNATICO CENTRO STORICO APPARTAMENTO AL SECONDO PIANO ED ULTIMO MOLTO PANORAMICO E LUMINOSO COMPLETAMENTE RISTRUTTURATO ED ARREDATO E MAI ABITATO: SOGGIORNO, CUCININO, CAMERA MATRIMONIALE BAGNO E CARATTERISTICA MANSARDA (SOPPALCATA) CON SCALA A GIORNO SEMPRE DAL SOGGIORNO. LIBERO IN PRONTA CONSEGNA. OTTIMO AFFARE...
70m23,5
80.000€
ROCCALBEGNA - CANA
Scopri questo affascinante appartamento nel cuore di Cana, un gioiello completamente ristrutturato con materiali tipici toscani. Situato al secondo piano di un edificio storico del 1800, questo immobile offre un’atmosfera unica grazie a travi a vista, mezzane e cotto che raccontano la tradizione della nostra terra. Con i suoi...
50m22,5
80.000€
CINIGIANO - CENTRO
Nel centro storico di Cinigiano disponiamo per la vendita di un appartamento con ingresso indipendente dal piano terra. L'immobile si sviluppa su due piani, al piano primo troviamo cucina e soggiorno e bagno con finestra, al piano superiore due camere. Ristrutturato recentemente soffitti con travi a vista. Libero con consegna...
85m241
83.000€
CASTEL DEL PIANO - CENTRO STORICO
CASTEL DEL PIANO IN CENTRO STORICO APPARTAMENTO TERRATETTO CON INGRESSO BIFAMILIARE SVILUPPATO SU 4 LIVELLI E PRECISAMENTE. PIANO TERRA: CANTINA CON FORNO A LEGNA E ANGOLO COTTURA PIANO PRIMO SOGGIORNO CON CAMINO, ZONA COTTURA, ANTIBAGNO E BAGNO. PIANO SECONDO DUE CAMERE E BAGNO E SOPRA MANSARDA CON UN...
60m243
85.000€
ROCCASTRADA - TORNIELLA
LOC. PILONI (Roccastrada/Torniella) Nell'antico borgo di Piloni vicino ad un comodo parcheggio proponiamo la vendita di una appartamento posto all'ultimo piano di un fabbricato storico del 1874. L'appartamento si trova in ottimo stato di manutenzione e si compone di un ingresso, un soggiorno, una cucina, due camere e un...
80m241
88.000€
ARCIDOSSO - CENTRO
Arcidosso zona centrale Vendesi appartamento di 4 vani ampi posto al 4° ed ultimo piano senza ascensore derivante da un frazionamento composto da ingresso, soggiorno con balcone, cucina abitabile, disimpegno notte, due camere, bagno con finestra corredato da una soffitta e da posto auto. Libero ...
90m241
90.000€
ROCCASTRADA - RIBOLLA
Appartamento di vani quattro al piano secondo in palazzina di soli due piani composto da ingresso nel soggiorno, cucina abitabile con balcone, disimpegno notte, bagno con finestra, due camere matrimoniali ed altro terrazzo. Autorimessa al piano interrato. Ottime condizioni. Libero con consegna immediata.
80m241
90.000€
CINIGIANO - SASSO D'OMBRONE
Ottimo appartamento in piccola palazzine costruito nella metà degli anni 80 al primo piano composto da ingresso, soggiorno con terrazzo, cucina abitabile con ripostiglio e terrazzo, , disimpegno, due camere matrimoniali di cui una con terrazzo, camera singola e doppi servizi. Garage al piano terra, cantina e posto auto....
112m25
90.000€
STRIBUGLIANO - STRIBUGLIANO
STRIBUGLIANO APPARTAMENTO CON INGRESSO INDIPENDENTE CON CORTE PRIVATA,COMPOSTO DA CUCINA ABITABILE CON TERMOCUCINA, SOGGIORNO CON CAMINETTO,PICCOLO BAGNETTO,RIPOSTGLIO.AL PIANO PRIMO CON ACCESSO DA SCALA INTERNA DISIMPEGNO NOTTE CON ACCESSO ALLA TAERRAZA, DUE CAMERE MATRIMONIALI, BAGNO E SOFFITTA.
105m242
93.000€
ROCCASTRADA - ROCCATEDERIGHI
Vendesi Ampio e Luminoso Appartamento con Garage, Posto Auto e Terrazzo in ROCCATEDERIGHI, Frazione di Roccastrada, Provincia di Grosseto in Toscana. Situato in una Palazzina Realizzata nel 1980 nell' Immediata Periferia del Paese, è Composto da un 4 Vani con Superficie Abitativa di circa 80 Mq....
80m241
94.000€
SCANSANO - POMONTE
Inseriti all’interno di una lottizzazione di recente costruzione, nei pressi di Pomonte nel comune di Scansano, vi offriamo un appartamento con due camere da letto posto al piano primo con ingresso indipendente e disposto su due livelli. L’appartamento presenta l’ingresso nel soggiorno con angolo cottura attraverso il quale è...
115m23,52
95.000€
SCANSANO - CENTRO
SCANSANO In zona panoramica proponiamo interessante appartamento su 3 livelli 90 mq circa così composto piano interrato comoda taverna e garage piano terra ingresso indipendente soggiorno con zona cottura e bagno tramite scala interna saliamo al piano primo dove troviamo due camere una con terrazzo e bagno libero pronta...
60m24
95.000€
SCANSANO - POLVERAIA
POLVERAIA FABBRICATO MONOFAMILIARE POSTO AL PIANO TERRA COMPOSTO DA INGRESSO INDIPENDENTE AMPIA SALA DA PRANZO, CUCINOTTO,SOGGIORNO CON CAMINO,PICCOLO BAGNO DI SERVIZIO, AL PIANO PRIMO TRAMITE SCALA INTERNA DUE AMPIE CAMERE MATRIMONILI E GRANDE BAGNO COMPLETAMENTE RISTRUTTURATO, AL PIANO SEMINTERRATO USCENDO DALL'APPARTAMENTO CANTINA CON ADIACENTE CORTE TERRAZZATA CON VISTA PANORAMICA...
120m252
98.000€
STICCIANO - CENTRO
Appartamento di circa 60 mq in nuova costruzione, sito al piano terra, composto da: soggiorno con angolo cottura di 23 mq, disimpegno, camera matrimoniale, cameretta/studio e bagno c.f. Completano la proprietà 2 ampi terrazzi (uno di 23,13 mq e l'altro di 8,21 mq),...
65m231
100.000€
MANCIANO - MONTEMERANO
MONTEMERANO (SATURNIA) APPARTAMENTO DI 2.5 VANI MQ. 42 POSTO AL 2° PIANO IN PALAZZINA DI TRE COMPOSTO DA INGRESSO, SOGGIORNO/PRANZO, PICCOLO RIPOSTIGLIO, CAMERA E SERVIZIO IGIENICO. OLTRE SOFFITTA.
42m22,51
100.000€
ROCCALBEGNA - CENTRO
IN LOC. ROCCALBEGNA, APPENA FUORI LE MURA Splendido appartamento indipendente in fabbricato di prestigio in pietra situato nel contesto medio signorile di Roccalbegna. Questa elegante residenza di 95 mq ha ingresso indipendente e sviluppa al primo piano. L'appartamento è composto da quattro...
95m24
100.000€
GAVORRANO - CALDANA
Ottimo appartamento in palazzina realizzata nel 1988 posto al piano secondo ed ultimo senza ascensore. L'immobile si compone di un ingresso, ripostiglio, soggiorno, disimpegno notte, due camere, studio e bagno senza finestra. A corredo garage. buonissime condizioni. Consegna in tempi brevi
90m25
105.000€
CAMPAGNATICO - CENTRO
Appartamento di circa 80 mq nel centro storico del paese di Campagnatico, ristrutturato nel 2008, con ingresso indipendente da scala esclusiva, situato al primo ed ultimo piano di un fabbricato in pietra faccia vista, composto da ingresso, soggiorno con accesso al balcone, cucina, disimpegno notte, ampio bagno finestrato, due camere da letto di...
80m241
110.000€
SCANSANO - CENTRO
Ottimo bilocale di recente costruzione composto da soggiorno con angolo cottura, bagno con finestra e camera matrimoniale con accesso a balcone vivibile. Garage con corte di proprietà antistante.
53m22,5
110.000€
MONTICELLO AMIATA - CENTRO
Nel cuore del borgo di Monticello vi offriamo un appartamento inserito all'interno di una palazzina composta da sole due unità. L'accesso all'immobile avviene tramite una scala condominiale che permette di raggiungere il piano primo composto da cucinotto con accesso ad un balcone di servizio, soggiorno ampio dove è possibile...
120m231
115.000€
CAMPAGNATICO - ARCILLE
ARCILLE APPARTAMENTO CON INGRESSO INDIPENDENTE DA CORTE ESCLUSIVA COMPOSTO DA SOGGIORNO CON ANGOLO COTTURA, DISIMPEGNO NOTTE , CAMERA MATRIMOINIALE, BAGNO C.F. AMPIO CAR-PORT, AL PIANO SEMINTERRATO COLLEGATO ANCHE DA SCALA INTERNA AMPIO VANO GARAGE (ATTUALMENTE UTILIZZATO COME TAVERNA), VANO AUTOCLAVE.L'APPARTAMENTO E' DOTATO DI CANNA FUMARIA
53m221
115.000€
SCANSANO - PRESELLE
LOC. PRESELLE APPARTAMENTO COME NUOVO POSTO AL PIANO PRIMO ED ULTIMO CON ENTRATA INDIPENDENTE DA CORTE ESCLUSIVA COMPOSTO DA CUCINA, SOGGIORNO ENTRAMBI CON USCITA NEL TERRAZZO, DISIMPEGNO NOTTE, CAMERA MATRIMONIALE CON TERRAZZO, CAMERA SINGOLA, BAGNO C.F. AL PIANO TERRA AMPIO CAR-PORT E CORTE...
70m241
120.000€
GAVORRANO - GIUNCARICO
GIUNCARICO Nel centro storico del piccolo paese di Giuncarico proponiamo la vendita di un appartamento con ingresso indipendente composto da ingresso, cucina con stufa a legna, due bagni, due camere oltre due locali uso cantina al piano sottostante con ingresso dalla via. Impianto elettrico a norma. Prezzo poco trattabile...
120m261
120.000€
ARCIDOSSO - SAN LORENZO
ARCIDOSSO 4 VANI DI MQ. 70 CON GIARDINO ED AMPIO PORTICO. AMMOBILIATO. CANTINA.
70m24
120.000€
PITIGLIANO - CENTRO
CENTRO STORICO DI PITIGLIANO A POCHI KM DALLE TERME DI SATURNIA APPARTAMENTO COMPLETAMENTE RISTRUTTURATO NEL 2007 E ARREDATO DI 4 VANI MQ. 72 AL PIANO PRIMO COMPOSTO DA SOGGIORNO CON CAMINETTO, CUCINA ABITABILE IN MURATURA, SALOTTO CON DOPPIA FINESTRA O SECONDA CAMERA,...
72m241
120.000€
SANTA FIORA - CENTRO
SANTA FIORA APPARTAMENTO DI 4 VANI, MQ 90 PIANO TERZO CON ASCENSORE CORREDATO DI GARAGE DI MQ 45 AL PIANO TERRA. COMPOSTO DA INGRESSO CON FINESTRA, CUCINA ABITABILE CON BALCONE, SOGGIORNO CON BALCONE, DOPPI SERVIZI CON FINESTRA,...
100m242
120.000€
CINIGIANO - SASSO D'OMBRONE
APPARTAMENTO DI MQ 70 COMPLETAMENTE RISTRUTTURATO COMPOSTO DA SOGGIORNO D'INGRESSO CON TERMOCAMINO, CUCINA ABITABILE, DISIMPEGNO NOTTE, SERVIZIO IGIENICO, CAMERA MATRIMONIALE E GRANDE RIPOSTIGLIO.
70m231
120.000€
CINIGIANO - CENTRO
Appartamento in piccola palazzina in ottimo stato con ampi terrazzi e molto luminoso composto da ampio soggiorno con terrazzo, cucina molto grande con terrazzo, disimpegno , tre camere e doppi servizi entrambi con finestra. Garage e cantina.
110m252
120.000€
SCANSANO - PANCOLE
SCANSANO, LOCALITA' PANCOLE, VENDESI APPARTAMENTO D'ANGOLO SECONDO E ULTIMO PIANO CON INGRESSO DA BALLATOIO ESTERNO, COMPOSTO DI AMPIO SOGGIORNO CON BALCONE, CUCINA ABITABILE CON RIPOSTIGLIO, DISIMPEGNO NOTTE CON TRE CAMERE E DOPPI SERVIZI. CORREDATO DI GARAGE E AMPIA CANTINA AL PIANO SEMINTERRATO DEL FABBRICATO OLTRE APPEZZAMENTO USO ORTO IN PROPRIETA'. LIBERO...
95m24
120.000€
SCANSANO - CENTRO
Appartamento a schiera con ingresso indipendente da corte esclusiva, per un totale di 120 mq, composto da cucina, sala con caminetto, disimpegno, bagno finestrato, ripostiglio, 3 camere e terrazzo al piano terra. Da scala interna accesso alla taverna collegata al garage di circa 40 mq. Riscaldamento termo autonomo....
120m251
125.000€
MONTIANO - VICINANZE PAESE
NELLA BELLISSIMA ZONA DI MONTIANO, IN POSIZIONE PANORAMICA, grazioso e ampio bilocale posto al secondo ultimo piano di una palazzina e corredato da posto auto privato,. L'appartamento ha accesso da una bella terrazza abitabile ed è composto da un...
50m221
125.000€
ARCIDOSSO - LE MACCHIE
APPARTAMENTO INDIPENDENTE COSTITUITO DA INGRESSO CON SCALA ESCLUSIVA, 2 VANI AL PIANO RIALZATO ED ULTERIORI 4 VANI OLTRE DISIMPEGNO E W.C. AL PIANO 1°. CORREDATO DI AMPIA CANTINA AL PIANO TERRENO.
120m21
125.000€
ROCCALBEGNA - CENTRO
ROCCALBEGNA AMPIO APPARTAMENTO COMPOSTO DA SOGGIORNO CON CAMINETTO E TERRAZZA PANORAMICA, CUCINA ABITABILE CON TERRAZZA, DISIMPEGNO NOTTE, CAMERETTA, CAMERA MATRIMONIALE, CAMERA DOPPIA, DOPPI SERVIZI. AMPIO GARAGE AL PIANO SEMINTERRATO CON CANTINA. OLTRE...
108m252
128.000€
ROCCASTRADA - RIBOLLA
Nei pressi del paese di Ribolla, inserito in un contesto di unità immobiliari di recente costruzione, vi offriamo questo trilocale, con tre lati liberi e con ingresso indipendente, raggiungibile attraversando la corte condominiale nella quale è stata installata un'ampia piscina. L'ingresso all'immobile avviene attraverso un portico rialzato ed esclusivo...
77m231
130.000€
MONTIANO - VICINANZE PAESE
Nei pressi di Montiano, a pochi minuti di macchina da Grosseto, vi offriamo un appartamento posto in un complesso di abitazione in schiera. All'immobile si accede in maniera totalmente indipendente attraversando una corte esclusiva che invita ad accedere alla cucina, dalla quale si raggiunge il soggiorno con accesso sul...
70m241
130.000€
SCANSANO - MURCI
MURCI Fabbricato unifamiliare affiancato, completamente rifatto esternamente ed in ottime condizioni interne composto da: P.T.: ingresso nel soggiorno, cucina con camino, ripostiglio/lavanderia/deposito(molto carino tutto pietra facciavista), scala di accesso al primo piano che ha anche ingresso autonomo,P.1°.: salotto, bagno con doccia e camera matrimoniale, P.2°:...
150m25,52
130.000€
ROCCASTRADA - RIBOLLA
GROSSETO - ROCCASTRADA - RIBOLLA : D'ANGOLO TRE VANI E MEZZO CON AMPIO GIARDINO E GARAGE. INGRESSO DAL CANCELLO AUTOMATICO, GIARDINO PIASTRELLATO, SUL LATO SPAZIO PER UNA PICCOLA PISCINA FUORI TERRA, SU FRONTE AMPIO SPAZIO UTILIZZATO PER CENE E POSTO AUTO, SUL RETRO ALTRO SPAZIO CON CAMINO E GARAGE DI mq....
65m23,51
130.000€
VALLERONA - CENTRO
VIA MARGHERITA APPARTAMENTO DI AMPIA METRATURA CON INGRESSO INDIPENDENTE DA DUE ENTRATE COMPOSTO DA SOGGIORNO, CUCINOTTO, DISIMPEGNO NOTTE, BAGNO PRINCIPALE CON FINESTRA, CAMERA MATRIMONIALE,CAMERA DOPPIA, BAGNO DI SERVIZIO S.F. , STUDIO/CAMERA SINGOLA CON USCITA DIRETTA NELLA CORTE CONDOMINIALE, RIPOSTIGLIO. FRONTE ALL'APPARTAMENTO AMPIO GIARDINO...
120m252
135.000€
CAMPAGNATICO - CENTRO
CAMPAGNATICO IN VILLETTINA QUADRIFAMILIARE CON STUPENDO PANORAMA SULLA MAREMMA OTTIMO APPARTAMENTO CON INGRESSO INDIPENDENTE E GIARDINO DI CIRCA 65 MQ COMPOSTO DA SOGGIORNO CON ANGOLO CAMERA CAMERETTA E BAGNO GRANDE BALCONE OLTRE TAVERNA DI CIRCA 30 MQ LIBERO A BREVE...
65m23,51
135.000€
SCANSANO - PANCOLE
NEL PAESE DI PANCOLE, COMUNE DI SCANSANO, VENDESI VILLETTA INDIPENDENTE DI 3 VANI CON SUPERFICIE DI CIRCA 45 MQ. CORREDATA DI CORTE ESCLUSIVA DI CIRCA 100 MQ. LA VILLETTA E LA CORTE è STATA COMPLETAMENTE RIStRUTTURATA E SI COMPONE IN TRE LOCALI QUALI: CUCINA, SOGGIORNO, CAMERA, INGRESSO E BAGNO. CORREDATA DI AUTORIMESSA. TERMO...
43m231
139.000€
ROCCASTRADA - RIBOLLA
All'ingresso del paese di Ribolla, con ingresso indipendente dal piano terra, vi offriamo un appartamento composto da soggiorno con angolo cottura, dal quale si accede la seconda corte esclusiva con n.2 ripostigli, disimpegno notte con camera singola e camera matrimoniale, anche loro con accesso alla suddetta corte, oltre ad...
75m23,51
140.000€
CINIGIANO - PIANTAVERNA
Nella località di Piantaverna, a pochi chilometri da Cinigiano, vi offriamo un appartamento con ingresso indipendente attraverso un portico esclusivo. L'immobile si compone di due unità divise tra loro, ma facilmente collegabili internamente. L'immobile è stato parzialmente ristrutturato, mentre la restante metà necessita di opere di ristrutturazione. L'immobile si...
200m23
140.000€
MONTICELLO AMIATA - CENTRO
A pochi passi dallo storico borgo di Monticello amiata, nel comune di Cinigiano, vi offriamo un terratetto in bifamiliare circondato da giardino esclusivo con ingresso indipendente. L'immobile si compone di accesso attraverso portico esclusivo che invita al soggiorno con terrazzo, una cucina abitabile e un bagno con finestra. Tramite una...
200m25,53
145.000€
MONTORSAIO - CENTRO
"Alle porte del borgo di Montorsaio, sito tra le colline del comune di Campagnatico, a soli 10 minuti di macchina da Grosseto vi offriamo questo trilocale di recente costruzione posto al piano primo con ingresso indipendente. Prima di raggiungere l'immobile si passa di fronte al giardino esclusivo che correda...
65m23,51
150.000€
CAMPAGNATICO - MARRUCHETI
MARRUCHETI APPARTAMENTO POSTO AL PIANO PRMO ED ULTIMO COMPOSTO DA PICCOLA CORTE ESCLUSIVA DI INGRESSO , SCALA DI ACCESSO ESTERNA, AMPIA VERANDA COPERTA, SOGGIORNO-ZONA COTTURA CON CAMINO ED AFFACCIO SULLA PIAZZA, DISIMPEGNO NOTTE, CAMERA SINGOLA CON TERRAZZINO, CAMERA MATRIMONIALE, BAGNO C.F. AL PIANO TERRA...
55m231
150.000€
GAVORRANO - BAGNO DI GAVORRANO
BAGNO DI GAVORRANO IN UN CONTESTO DI VILLETTE A SCHIERA DI RECENTE COSTRUZIONE VENDESI AL PRIMO PIANO APPARTAMENTO CON SOGGIORNO ANGOLO COTTURA, CAMERA, BAGNO CON DOCCIA E FINESTRA E DEPOSITO OCCASIONALE COLLEGATO TRAMITE SCALA A CHIOCCIOLA DOVE SI TROVA UN VANO PLURIUSO, UN BAGNO E UN TERRAZZO. L'APPARTAMENTO E'...
40m22,52
150.000€
CINIGIANO - CENTRO
Terratetto su tre livelli con ingresso indipendente in schiera con giardino e garage. Buone condizioni e bella posizione. Soggiorno con terrazzo, cucina con balcone , tre camere, doppi servizi, taverna e garage.
110m25
155.000€
SCANSANO - PRESELLE
PRESELLE APPARTAMENTO DI RECENTE COSTRUZIONE POSTO AL PIANO RIALZATO COMPOSTO DA GIARDINO ESCLUSIVO, TERRAZZA PANORAMICA, AMPIO SOGGIORNO CON ANGOLO COTTURA, TERMOCAMINO, PICCOLO RIPOSTIGLIO, DISIMPEGNO NOTTE, CAMERA MATRIMONIALE CON USCITA NELLA VERANDA RETRO, CAMERETTA, BAGNO CON DOCCIA E FINESTRA. ...
63m231
160.000€
STICCIANO - SCALO
STICCIANO SCALO Appartamento seminuovo, composto da soggiorno con balcone, cucina aperta, disimpegno notte, camera, camerina con balcone e bagno c.f. Ripostiglio sottoscala nel pianerottolo.
80m241
165.000€
VALLERONA - CENTRO
ANTICA CASA BIFAMILIARE, OTTIMA POSIZIONE, IN PAESE MA IN DISPARTE, UNITA' ABITATIVA CON UN ACCESSO CARRABILE ED UN INGRESSO PEDONALE INDIPENDENTE DAL GIARDINO FRONTALE DI PROPRIETA' ESCLUSIVA. L'ABITAZIONE E' COMPOSTA AL PIANO TERRA DA AMPIA SALA CON CAMINETTO ED ARCO ANTICO IN MATTONI, SALA DA PRANZO E CUCINOTTO. AL...
132m251
180.000€
CIVITELLA PAGANICO - PAGANICO
Nella località di Paganico, a soli 15 minuti di macchina da Grosseto, vi offriamo un appartamento di recente costruzione posto in una soluzione di appartamenti in schiera. L'immobile gode sia di un ingresso condominiale che di un ingresso indipendente dal piano rialzato e si compone di ingresso nel soggiorno...
80m252
180.000€
VALLERONA - CENTRO
APPARTAMENTO INDIPENDENTE DI TESTATA IN BUONE CONDIZIONI, COMPOSTO AL PIANO TERRA AMPIO INGRESSO, CUCINA ABITABILE, RIPOSTIGLIO, BAGNO, SOTTOSCALA E AMPIA CANTINA, AL PIANO PRIMO, SOGGIORNO CON CAMINETTO, DUE CAMERE M,ATRIMONIALI, CAMERETTA, BAGNO. AMPIO GIARDINO CON DUE POSTI AUTO, VERANDA CON PERGOLA, VARI...
150m262
180.000€
GAVORRANO - POTASSA
LOCALITA' POTASSA APPARTAMENTO DI NUOVA COSTRUZIONE IN PALAZZINA QUADRIFAMILIARE COSI' COMPOSTO SOGGIORNO/CUCINA D'INGRESSO CON TERRAZZA, DISIMPEGNO NOTTE CON 2 CAMERE CON ULTERIORE TERRAZZA ED AMPIO SERVIZIO IGIENICO. A DETTO APPARTAMENTO SONO ANNESSI SOFFITTA AL PIANO SOTTOTETTO E GARAGE AL PIANO...
75m23,51
180.000€
CIVITELLA PAGANICO - PAGANICO
CENTRO STORICO PAGANICO. APPARTAMENTO SU PIù LIVELLI CON INGRESSO INDIPENDENTE, DIVISIBILE IN DUE UNITA' IMMOBILIARI. OTTIME CONDIZIONI. PRIMO E SECONDO PIANO MANSARDATO.
120m252
180.000€
CAMPAGNATICO - CENTRO
CAMPAGNATIC O STUPENDO APPARTAMENTO NEL CENTRO STORICO DEL PAESE COMPOSTO DA SOGGIORNO CON ANGOLO COTTURA E TERRAZZINO 2 CAMERE DOPPI SERVIZI RIFINITURE DI PREGIO OGGETTO PARTICOLARISSIMO DA VERI AMATORI VISTA MOZZAFIATO SUL FIUME...
90m23,52
185.000€
CAMPAGNATICO - S. ANTONIO
CAMPAGNATICO LOCALITA' SANT'ANTONIO IN VILLETTA PLURIFAMILIARE APPARTAMENTO INDIPENDENTE CON GIARDINO E POSTO AUTO COMPOSTO DA SOGGIORNO CON ANGOLO COTTURA CAMERA CAMERETTA E BAGNO VERANDA ESTERNA E GIARDINO OTTIME RIFINITURE LIBERO PRONTA CONSEGNA PREZZO MOLTO INTERESSANTE...
72m23,51
195.000€
MAGLIANO - CUPI
Appartartamento con ingresso indipendente al primo piano in casale con terrazzo di circa 50 mq , soggiorno con cucinotto, disimpegno, due camere e servizio igienico. Terreno di proprietà con circa 25 piante di olivo di fronte alla proprietà. Panoramico. Bella posizione.
75m23,5
195.000€
MAGLIANO - CENTRO
MAGLIANO IN TOSCANA APPARTAMENTO POSTO AL SECONDO ED ULTIMO PIANO COMPOSTO DA INGRESSO SOGGIORNO/CUCINA CON RIPOSTIGLIO E DISIMPEGNO NOTTE PER DUE MATRIMONIALI DI CUI UNA CON BALCONE PANORAMICO ED UN SERVIZIO IGINICO. ALL'APPARTAMENTO SONO PERTINENTI UNA SOFFITTA SOPRASTANTE DI MQ 50,00 CA. ED UN...
65m23,51
200.000€
ROCCASTRADA - CENTRO STORICO
Nelle immediate vicinanze del centro storico di Roccastrada, con affaccio su tutto il borgo, vi offriamo una porzione di un casale bifamiliare con ingresso indipendente attraverso una corte comune. L'immobile si compone di ingresso, soggiorno, sala da pranzo, cucina, ripostiglio, tre camere da letto e un bagno con finestra....
150m271
200.000€
CIVITELLA PAGANICO - PAGANICO
PAGANICO BELLISSIMO APPARTAMENTO DI CIRCA 110 MQ PIANO TERZO ED ULTIMO SENZA ASCENSORE COMPOSTO DA BELLISSIMO SOGGIORNO CON TERRAZZO VIVIBILE CUCINA ABITABILE 2 MATRIMONIALI DOPPI SERVIZI GRANDE RIPOSTIGLIO E/O...
110m242
205.000€
CAMPAGNATICO - CENTRO
Ai margini del paese di Campagnatico, facente parte di schiera con ottime facciate, vendiamo appartamento in terra/tetto, sviluppato su 2 livelli con ingresso indipendente al piano terra con salone grande, zona cottura aperta e servizio. scala interna o secondo accesso esterno collegano al piano primo con 3 vani e secondo...
100m252
210.000€
MONTIANO - CENTRO
Vendesi Appartamento nel Comune di Magliano in Toscana, precisamente nel paese di Montiano, borgo medievale di 500 abitanti che sorge su una vetta di 260 metri da cui si gode un panorama unico che spazia fino alla costa e distante soltanto 15 km dal mare di...
170m21
220.000€
ARCIDOSSO - MONTELATERONE
**Villetta di Testata con Vista Panoramica a Montelaterone - Arcidosso** Scopri questa incantevole villetta di testata completamente indipendente, situata a Montelaterone, a pochi chilometri dai pittoreschi paesi di Castel del Piano e Arcidosso. Libera su tre lati, questa proprietà vanta un ampio giardino panoramico, perfetto per godersi momenti di...
70m23,52
220.000€
GAVORRANO - GRILLI
GAVORRANO - LOC. GRILLI in posizione strategica, vendiamo una porzione di villa bifamiliare con ampio giardino, piloty e garage Ingresso carrabile per la macchina e pedonale, ampio giardino laterale e retro, PILOTY con cottura e servizio igienico e garage. oltre appartamento...
160m263
220.000€
CASTEL DEL PIANO - CENTRO
CASTEL DEL PIANO: Appartamento di 150 mq con ingresso indipendente posto al primo piano ed ultimo in complesso con 3 appartamenti affiancati. Al piano terra troviamo ampio garage e portone di ingresso con scala per arrivare al primo piano dove troviamo salone doppio con camino e terrazzo,...
230m25
239.000€
SANTA FIORA - CENTRO
SANTA FIORA VILLETTA INDIPENDENTE DI MQ. 95 DOTATA DI TELERISCALDAMENTO, IN MURATURA, CORREDATA DI TERRAZZO DI 15 MQ., TAVERNA E GARAGE DI MQ. 45 TOTALI E GIARDINO ESCLUSIVO DI MQ. 340 .
95m241
250.000€
ROCCALBEGNA - S.CATERINA
IMPOSTO FABBRICATO MONOFAMILIARE COMPOSTO AL PIANO TERRA DA AMPIO SALONE , AMPIA SALA PRANZO CON CUCINA A VISTA, BAGNO DI SERVIZIO, TUTTE LE STANZE HANNO USCITA SULLA CORTE ESCLUSIVA CHE CIRCONDA LA PROPRIETA'. AL PIANO PRIMO ED ULTIMO CON ACCESSO DA SCALA INTERNA, DUE CAMERE MATRIMONILALI DI CUI UNA...
120m2
250.000€
BATIGNANO - CENTRO
BATIGNANO IN CARATTERISTICO VICOLO CON VISTA PANORAMICA APPARTAMENTO INDIPENDENTE E GIARDINO DI CIRCA 200 MQ SU 2 LIVELLI GIA' FISICAMENTE DIVISO IN 2 UNITA' IMMOBILIARI COMPOSTO DA REPARTO GIORNO AL PIANO TERRA 3 CAMERE E BAGNO AL PIANO PRIMO OLTRE...
200m252
270.000€
SCANSANO - CENTRO
SCANSANO vendesi nel paese di Scansano Antica dimora denominata "L'Estatatura" Attualmente consiste in una superficie di 550 mq netti sviluppati su quattro piani con doppio ingresso da due strade parallele ma diverso livello. L'immobile ha necessità di essere ristrutturato completamente con particolare attenzione anche alle strutture, ai solai agli impianti etc....
550m210
280.000€
MONTIANO - CENTRO
Nel Comune di Magliano in Toscana in loc. Montiano, a circa 18 km dal mare vendiamo immobile indipendente terracielo nel caratteristico borgo del Paese disposto su 3 livelli e composto da n.2 unità immobiliari di cui: Abitazione di circa 200 mq commerciali sviluppata su 3 livelli con...
250m211
295.000€
CIVITELLA PAGANICO - PAGANICO
Nel centro di Paganico disponibile per la vendita ampio appartamento in palazzina di soli tre unità abitative èposto al secondo piano senza ascensore e composto da ingresso, salone, cucinotto-tinello, disimpegno notte che apre a tre camere matrimoniali e due bagni con finestra. un terrazzo di servizio nel tinello e...
135m252
330.000€
CIVITELLA PAGANICO - PAGANICO
Vendesi Appartamento nel Comune di Civitella Paganico Precisamente nel Paese di Paganico, Borgo Medievale di 1.000 Abitanti che Sorge Lungo la Statale 233 che lo Collega a Grosseto, Distante 20 km e a Siena circa 45 km. L' Ampio Immobile Misura una Superficie...
135m252
330.000€
MAGLIANO - CUPI
Vendesi nelle Colline di Maremma, nella Zona di Cupi nel Comune di Magliano in Toscana, un Appartamento Indipendente di circa 120 Mq Complessivi con un Giardino di circa 400 Mq e Terreno di circa 5.000 mq con 110 Piante di Olivo. L'immobile fa Parte di Fabbricato Quadrifamiliare di Recente Ristrutturazione....
120m262
340.000€
STICCIANO - CENTRO
Nella Frazione di Sticciano Scalo, nel Comune di Roccastrada distante 18 km da Grosseto, Vendesi Villa Monofamiliare di complessivi mq 220 suddivisi in 2 livelli. > la Villa,...
220m282
350.000€
ROCCALBEGNA - CANA
Nelle immediate vicinanze di Cana, piccolo borgo posto nel comune di Roccalbegna, con vista su tutta la Maremma della Toscana, vi offriamo un rustico totalmente da ristrutturare disposto su due livelli e composto da più locali, libero su tutti e quattro i lati. L'ingresso è attualmente condiviso con un'altra...
120m213
390.000€
CINIGIANO - VICINANZE DEL PAESE
Scopri questo incantevole casale indipendente in pietra, situato in una posizione tranquilla e riservata, circondato da un ampio giardino di 1.200 mq con piscina. L'accesso alla proprietà avviene tramite un cancello automatico che garantisce sicurezza e privacy. La villa, di 290 m² commerciali e 270 m² calpestabili, si sviluppa...
270m272
420.000€
CINIGIANO - VICINANZE DEL PAESE
Villa Monofamiliare nel comune di Cinigiano località Abbandonato. L'immobile è stato ultimato nel 2004 e si presenta in ottime condizioni. Composto da giardino, portico, salone, cucina abitabile bagno e centrale termica al piano terra; due camere, due bagni, ripostiglio e tre terrazzi.
200m243
510.000€
CAMPAGNATICO - CENTRO
CAMPAGNATICO CENTRO STORICO MEDIOEVALE STUPENDA VILLA UNIFAMILIARE ERETTA SULLA ANTICA CINTA MURARIA DEL PAESE RISALENTE AI PRIMI DELL'OTTOCENTO COMPLETAMENTE E FINEMENTE RISTRUTTURATA CON PARTICOLARE CURA NELLA SCELTA DEI MATERIALI DELL'EPOCA FACCIATA IN PIETRA FACCIA VISTA GRANDE GIARDINO ATTREZZATO CON IMPIANTO D'IRRIGAZIONE E LUCI...
270m264
770.000€
MONTIANO - VICINANZE PAESE
Nella zona di Montiano, fra le colline del Morellino di Scansano, a 20 minuti da Saturnia e a 30 minuti dal mare di Marina di Alberese, vendesi azienda agricola composta da casale su due livelli di cui 120 mq. a piano terra adibiti ad imbottigliamento e rivendita, e gli...
120m261
1.300.000€
MANCIANO - CENTRO
MANCIANO Nel centro del paese caratteristico ed affascinante fabbricato totalmente indipendente su piu' livelli di circa 700 mq con 2000 mq di parco vista mozzafiato sulla campagna maremmana con addirittura vista sul mare dell'Argentario la struttura necessita di una totale ristrutturazione e vista la sua versatilità potrebbe essere indiacata sia per...
700m2255
tratt.ris.



















































































































