Appartamento 4 vani in vendita


Località

SCANSANO

Zona

CENTRO

Richiesta

80.000€ (trattabile)

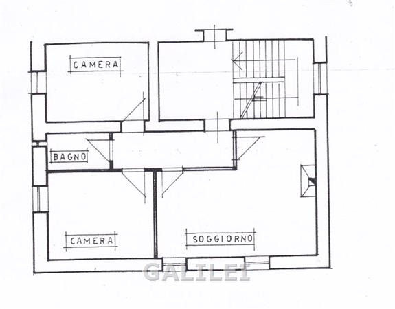
Descrizione immobile

SCANSANO  - PASSEGGIATE LENTAMENTE  E GUSTATEVI IL FASCINO DI OGNI ANGOLO E DI OGNI PIETRA DI QUESTO INCANTEVOLE BORGO SITUATO SULLE COLLINE, IN PROVINCIA DI GROSSETO , COMMINANDO POTETE TROVARE TESTIMONIANZA DELLA SUA STORIA NEI PALAZZI E NEL TERRITORIO. NUOVE E ANTICHE EMOZIONI VI COGLIERANNO. FANNO DA CORNICE LE VIGNE DEL MORELINO  - QUI SI VENDE UN QUATTRO VANI, CON CUCINA APERTA SUL LIVING CON CAMINETTO, 2 AMPIE CAMERE, UN BAGNO RISTRUTTURATO. TRAVI E CORRENTI CON MEZZANE.  ^


Caratteristiche

65 m2
3,5 vani
1 bagni
piano 2
classe EPI : N.D.
indice EPgl,nren : 170

>

Richiesta informazioni