Bilocale in vendita


Località

GROSSETO

Zona

CENTRO STORICO

Richiesta

150.000€

Descrizione immobile

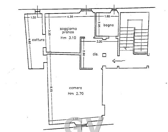
Ampio e caratteristico bilocale posto al secondo piano ed ultimo di una piccola palazzina storica. L'immobile è composto da: ampio ingresso, soggiorno, cucinotto separato, bagno con finestra e camera matrimoniale. Belle le viste sulla mura medicee e sulla via. Appartamento subito libero, in ottime condizioni, doppi esposizione, perfetto sia come studio professionale che come immobile da mettere a reddito.


Caratteristiche

65 m2
2,5 vani
1 bagni
piano 2
classe EPI : N.D.
indice EPI in definizione

>

Richiesta informazioni