Appartamento 5 vani in vendita


Località

GROSSETO

Zona

VERDE MAREMMA

Richiesta

310.000€

Descrizione immobile

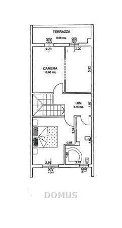
VERDE MAREMMA VENDESI APPARTAMENTO TERRA/TETTO CON INGRESSO INDIPENDENTE DA GIARDINO DI PROPRIETA'. VERANDA D'INGRESSO, SOGGIORNO CON TERRAZZO, CUCINA, BAGNO CON FINESTRA. AL PIANO PRIMO RAGGIUNGIBILE DA SCALA INTERNA DISIMPEGNO CON DUE CAMERE (VOLENDO POSSIBILE LA TERZA) E BAGNO CON FINESTRRA. SOTTOTETTO UTILIZZABILE COME DEPOSITO. COMPLETA LA PROPRIETA' UNA CANTINA, UN GARAGE AL PIANO SEMINTERRATO E UNA STANZETTA LAVANDERIA E ALLOGGIAMENTO AUTOCLAVE ESTERNA. OTTIME RIFINITURE GENERALI


Caratteristiche

100 m2
5 vani
piano S/R/1
garage
giardino
taverna
classe EPI : N.D.
indice EPI in definizione

Contatti

DOMUS

Rif: GC-1004

>

Richiesta informazioni