Appartamento 5 vani in affitto arredato


Località

ROSELLE

Zona

CENTRO

Richiesta

375.000€

Descrizione immobile

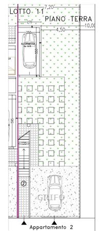
Appartamento di nuova realizzazione a Roselle, a pochi minuti da Grosseto. L'immobile si trova all'interno di una trifamiliare composta da un'unica unità al piano terra e da due unità al piano primo. Ogni appartamento dispone di un proprio ingresso indipendente. Questo nello specifico si compone ingresso da scala esterna totalmente indipendente attraverso un giardino esclusivo dove è situato il garage esclusivo e il posto auto scoperto a corredo della proprietà. L'accesso avviene nel soggiorno con angolo cottura, che invita al terrazzo abitabile, e reparto notte composto da tre camere da letto, di cui due singole, oltre che a due bagni entrambi con finestra. Inizio lavori per novembre 2024 con consegna prevista per maggio/luglio 2025 LOTTO 11 APP.2 PIANO PRIMO


Caratteristiche

95 m2
5 vani
2 bagni
piano 1
garage
giardino
classe EPI : N.D.
indice EPI in definizione

Contatti

GRIFO

Rif: GC-519G

>

Richiesta informazioni