Appartamento 4 vani in vendita


Località

GROSSETO

Zona

GORARELLA

Richiesta

233.000€ (trattabile)

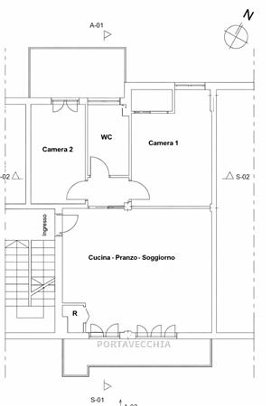
Descrizione immobile

 Ottimo appartamento di 4 vani, di circa 85 mq utili, ubicato al primo piano con ascensore che arriva su terrazzo privato in piccola palazzina a tre piani, con  ingresso in grande zona giorno open space con parete cottura a vista e terrazza, ripostiglio, disimpegno, camera matrimoniale con bagno senza finestra, bagno principale con finestra, seconda camera con balcone. Completa la proprietà una soffitta all’ ultimo piano dello stabile. L’immobile è stato completamente ristrutturato con materiali e rifiniture di pregio. Aria condizionata, avvolgibili elettrici.


Caratteristiche

100 m2
4 vani
piano 1
ascensore
soffitta
classe EPI : N.D.
indice EPI in definizione

Contatti

PORTAVECCHIA

Rif: GC-

>

Richiesta informazioni