Appartamento 4 vani in vendita


Località

GROSSETO

Zona

REGIONI

Richiesta

220.000€ (trattabile)

Descrizione immobile

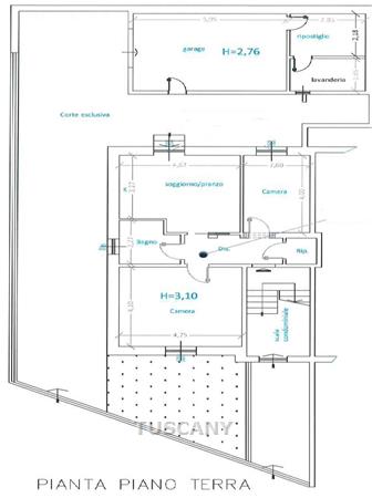
GROSSETO ZONA REGIONI APPARTAMENTO CON INGRESSO ANCHE INDIPENDENTE, DEPENDANCE E RESEDE ESCLUSIVA  CON PASSO CARRABILE. APPARTAMENTO RISTRUTTURATO 10 ANNI FA CIRCA, CON DEPENDENCE (EX GARAGE) E RESEDE ESCLUSIVA DI CIRCA MQ. 150. ALLA PROPRIETA' SI PUO' ACCEDERE DAL VANO SCALE IN COMUNE CON UN'ALTRA PROPRIETA' DEI PIANI SUPERIORI OPPURE DAL CANCELLO PRIVATO SULLA STRADA, CON PASSO CARRABILE IN CUI FAR ACCEDERE 2-3 AUTO. DALL'INGRESSO INDIPENDENTE CON PORTAFINESTRA, CON VETRO ANTISFONDAMENTO, SI ACCEDE DIRETTAMENTE, AL PIANO RIALZATO CON DUE SCALINI, ALL'APPARTAMENTO PER CIVILE ABITAZIONE DI MQ. 75 CA., E QUINDI AD UN SOGGIORNINO CON ANGOLO COTTURA, AL DISIMPEGNO NOTTE IN CUI ABBIAMO UN SERVIZIO IGIENICO CON DOCCIA E FINESTRA, CAMERA MATRIMONIALE AMPIA , CAMERINA AMPIA E RIPOSTIGLIO. MENTRE SE SI ACCEDE DAL VANO SCALE ABBIAMO IL PORTONCINO BLINADATO NEL DISIMPEGNO NOTTE. POI ABBIAMO, DISTACCATA DALLA PALAZZINA BIFAMILIARE,UNA  DEPENDANCE DI 40 MQ. CA. (EX GARAGE) ANCH'ESSA RISTRUTTURATA DIECI ANNI FA CIRCA, COMPOSTA DA UNICO VANO CON LATO COTTURA, DISIMPEGNO E SERVIZIO IGIENICO CON FINESTRA.                                      6                                                                                                                                                                                                                                                                                               


Caratteristiche

75 m2
3,5 vani
1 bagni
piano T
garage
giardino
classe EPI : N.D.
indice EPgl,nren : 150

Contatti

TUSCANY

Rif: GC-Q/479

>

Richiesta informazioni