Appartamento 5 vani in affitto non arredato


Località

ORBETELLO

Zona

SCALO

Richiesta

1.200€

Descrizione immobile

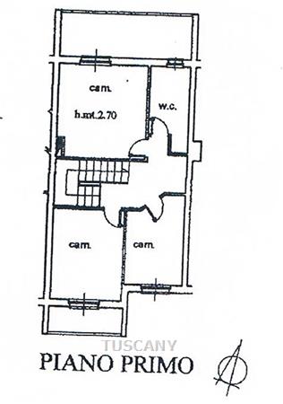
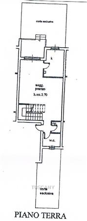
ORBETELLO SCALO BELLISSIMA PROPRIETA' TERRA TETTO IN SCHIERA CON DOPPIO GIARDINO ESCLUSIVO FRONTE-RETRO COMPOSTA DA: ZONA GIORNO AL PIANO TERRA RIALZATO (2 SCALINI) CON  PORTICATO VIVIBILE, SALONE CON CAMINO E RIPOSTIGLIO-SOTTOSCALA, CUCINA ABITABILE CON FINESTRA CON MOBILIO COMPLETAMENTE NUOVO E LAVASTOVIGLIE, LAVANDERIA,  SERVIZIO IGIENICO CON FINESTRA E DOCCIA E EX AUTORIMESSA TRASFORMATA IN ACCESSORIO ABITATIVO QUINDI POSSIBILITA' DI FARCI CAMERA O STUDIO.   POSTO AUTO NELLA CORTE SUL RETRO; ZONA NOTTE AL PIANO PRIMO SALENDO UNA SCALA COMODA CON  TRE CAMERE, UNA MATRIMONIALE CON TERRAZZA, UNA DOPPIA CON TERRAZZA E UNA SINGOLA E SERVIZIO IGIENICO CON FINESTRA E DOCCIA. POSTI AUTO LIBERI FUORI.


Caratteristiche

120 m2
5 vani
2 bagni
piano T - 1
giardino
balconi
classe EPI : N.D.
indice EPI in definizione

Contatti

TUSCANY

Rif: GC-A/361

>

Richiesta informazioni